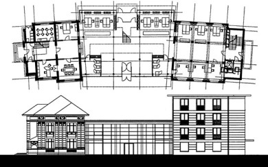
Um- und Neubau der Löwenvilla, Sparkasse Neubrandenburg

I

 

Eingeladener Realisierungswettbewerb 1992, 1. Preis
Planung/Ausführung: 1995-97


Zusammenarbeit: Hendrik Welp und Kay Sawadda
Auftraggeber: Neubrandenburger Sparkasse
Bauleitung: AIN, Neubrandenburg
Tragwerksplanung: Dipl.Ing. J. Tessendorf GmbH, Neubrandenb.
ELT-Planung: NEIB GmbH, Neubrandenburg
HLS-Planung: Ingenieurbüro Winter, Neubrandenburg
Gebäudekosten netto (KG 3+4) : 4,2 Mio. Euro

 


Die unter Denkmalschutz stehende Löwenvilla wird durch einen Anbau zur Hauptfiliale der Neu-brandenburger Sparkasse erweitert. Durch die Anbauten wird der bestehende Baukörper in die großmaßstäbliche Neubebauung der Umgebung eingebunden und schafft eine räumliche Fassung der Wallringstrasse.
Die Erweiterung umfaßt ein turmartiges Pedant zur bestehenden Villa und eine gläserne Halle.

I

I